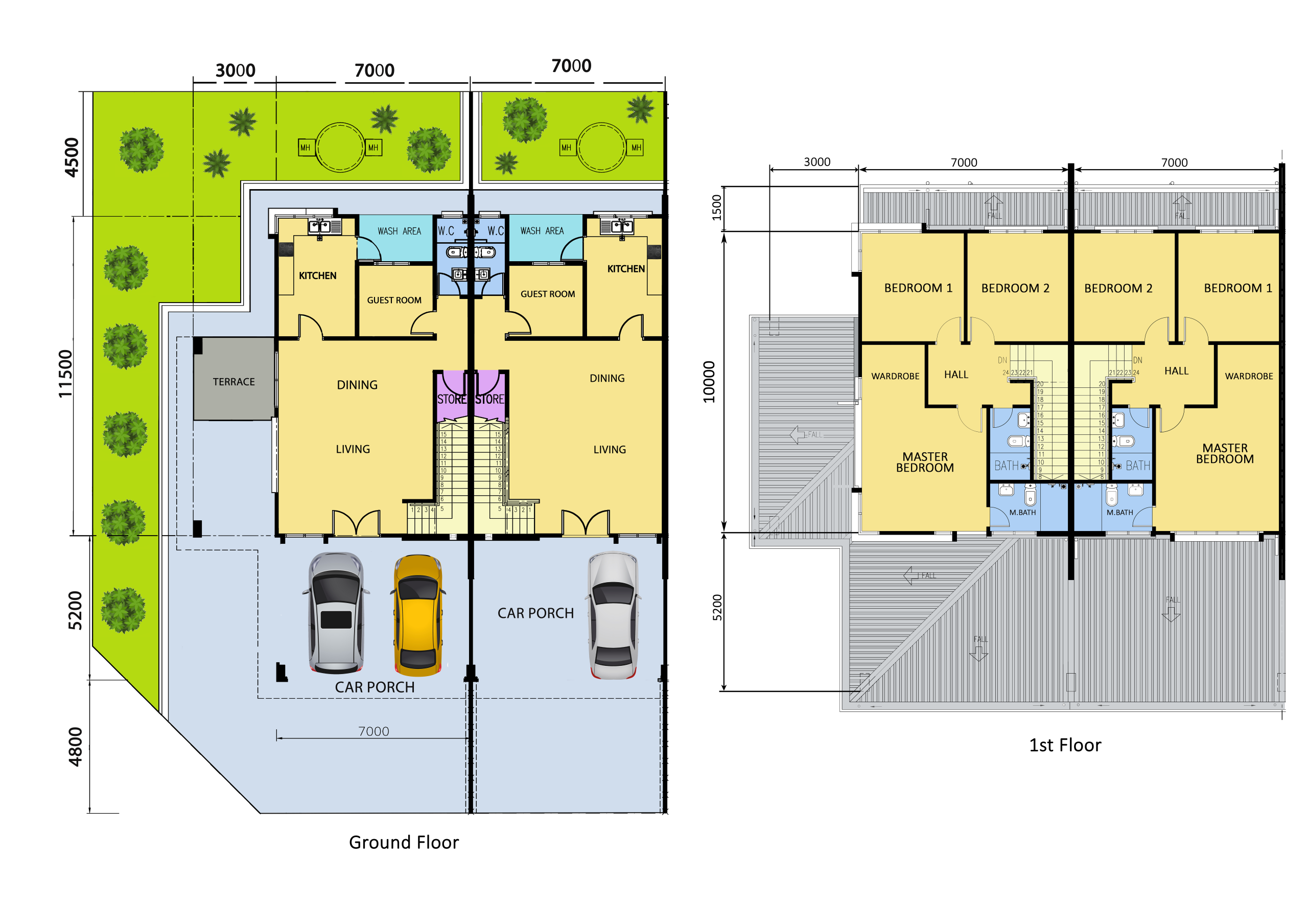
Green Heights Residence 4 is a double-storey terrace housing development comprising 50 units, designed for comfortable family living in a well-established residential area along the 7-Mile Bintulu–Miri Pan Borneo Highway.
Located on high ground in Bintulu, the development offers a practical living environment with convenient access to surrounding amenities, while maintaining a calm and well-planned neighbourhood setting.
Green Heights Residence 4 is strategically located along the 7-Mile Bintulu–Miri Pan Borneo Highway, offering convenient access to nearby areas such as Times Square Mega Mall, Junction 5, schools, and key commercial zones in Bintulu.
The project offers double-storey terrace houses designed with practical layouts, good ventilation, and comfortable living spaces suitable for families.
The project is currently under development, with an expected completion timeline in 2028.
Green Heights Residence 4 is developed by Dayabaru Sdn. Bhd., a subsidiary of the Johabaru Group of Companies, with over 40 years of experience in property development and construction.
Yes. Future phases under the Green Heights Residence development are planned for the same area. More details will be shared when available.
I’m interested in Green Heights Residences 4!
Tell me more!